Баня в современном стиле с плоской кровлей, 56,07 м²
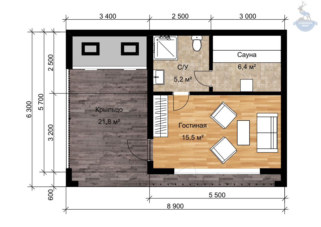
Просторная баня представляет собой одноэтажное здание прямоугольной формы с прямой крышей и тремя дымоходами. Размер строения по периметру: 8,9X6,3 м. Фасад оформляется практичными стильными материалами. Современный лаконичный дизайн украсит любой участок и не потеряет актуальность, спустя годы.
Внутри помещения – сауна площадью 6,2 кв. м, санузел 5,2 кв. м и гостиная 15,5 кв. м. В комнате свободно разместится мебель стол, кресла, при необходимости, спальное место. За счет наличия гостиной, баню можно использовать в качестве уютного домика для гостей.
Одно из главных преимуществ проекта – просторная терраса площадью 21,8 кв. м. После банных процедур здесь можно освежиться, насладиться видом природы и выпить чаю. При этом Вы будете защищены от дождя и ветра.
Для строительства использованы надежные экологичные материалы. Износостойкие покрытия позволят не беспокоиться о ремонте долгие годы.
Данная баня станет идеальным местом для отдыха с семьей или компанией друзей. Здесь есть все для комфорта и релаксации. В сауне одновременно свободно разместятся 2-4 человека в зависимости от комплекции.
Постройте современную комфортабельную баню и сделайте жизнь за городом еще приятней и насыщенней!
Категория: Баня

- Перепланировка бани
- Проект бани (АР, КР)
- Доставка до 50км
- Пробное бурение
- Обеспечение туалетом и бытовкой на объекте
- Видеокамера для видеонаблюдения за процессом строительства
Фундамент
Железобетонные сваи 150Х150Х3000мм., оголовки 200Х200мм., сваи забиваются машинным методом на глубину ниже уровня промерзания грунта. (при перепадах грунта и необходимости использовать более длинные сваи, стандартные сваи (необходимое количество) меняются на более длинные с доплатой от Заказчика.)
Обвязка
Гидроизоляция по фундаменту, устройство нижней обвязки из антисептированного бруса 150х150мм. Опорные столбы, декоративные элементы 100/150/200 мм, строганные.
Каркас
Каркас бани из сухой строганой доски камерной сушки высшего сорта. Силовой каркас, хедеры, ригеля, обвязки каркаса - 50Х150, стропильная система, перекрытия - 50Х200, перегородки- 50Х100/150.
Окна, двери
Окна и внутренние двери белые металлопластиковые с двухкамерным стеклопакетом 4-18[Ar]-4-14[Ar]-4I-ст. Металлическая фурнитура. Профиль Rehau Grazio, ламинация с внешней стороны. Входная дверь металлическая (Россия). Деревянное окно в сауне.
Кровельная система
Кровельное покрытие металлочерепица/кликфальц/наплавляемая кровля по проекту с комплектом фасонных изделий, гидро- ветрозащитной мембраной TYVEK SOFT, обрешетка, контр. обрешетка 45/45 мм.
Внешняя отделка
Имитатор бруса "Карельский профиль" окрашенный в производственных условиях /кликфальц/штукатурка по проекту + теплоизоляционные плиты БЕЛТЕРМО TOP 25мм., шип-паз, устройство водоотливной металлической планки по периметру дома, оконные отливы, наличники окон и дверей.
Утепление
Теплоизоляция полов/потолков утеплителем Rockwool 200 мм, теплоизоляция стен утеплителем Rockwool 200 мм, шумоизоляция перегородок Rockwool 100/150мм. Пароизоляционные и ветро влагозащитные мембраны монтируются внахлест.
Напольное покрытие и ограждение террас
Устройство полов террас и балконов выполняется из лиственницы 28 мм окрашенной в производственных условиях. Устройство ограждений террас по проекту
Комплект водосточной системы «Docke Premium».
Внутренняя отделка.
Внутренняя отделка стен и потолков – Имитация бруса 17Х145 (± 2мм) мм камерной сушки по контр. обрешетке 20х40 мм с шагом не более 600мм. Монтаж имитации бруса производится (вертикально или горизонтально) на оцинкованные финишные гвозди пневмопистолетом. Допускаются стыки внутренней отделки в разбежку. по стенам и потолкам.
Производственная покраска внутренней отделки дома (1слой грунта. 2слоя краски кроющий или лессирующий. Стены и потолок сауны- осиновая евровагонка камерной сушки кат. АВ, монтируется на оцинкованные финишные гвозди по контробрешетке 20х40 мм.с шагом не более 600мм вертикально. Фольгированная пароизоляция по стенам и потолку. Полог 2-х уровневый из Абаша (специальное дерево для саун, которое не нагревается) по проекту. Лестница строительная (при наличии второго этажа). Монтаж межкомнатных дверей, стеклянная дверь для саун.
Напольное покрытие
Устройство полов ВДСПШ Quick Deck Proffessional 22мм по сухой строганной контробрешетке.
Монтаж инженерных систем
Монтаж электрики внутри бани
Монтаж радиаторов (электрических)
Монтаж электрической печи Harvia
Разводка труб систем ГВС ХВС и канализационных труб, монтаж бойлера 50 л
Монтаж теплого пола (электрического) в с/у
Монтаж напольного чистового покрытия
Ламинат в жилых помещениях, кафельная плитка в с/у, сауне. Монтаж напольных плинтусов
Ваш каркасный дом?
- зададим несколько уточняющих вопросов;
- рассчитаем точную смету в течение 24 часов;
- дадим полное понимание по срокам, стоимости, гарантиям;

менеджер по работе
с клиентами





