Каркасный дом в современном стиле, 138 м²
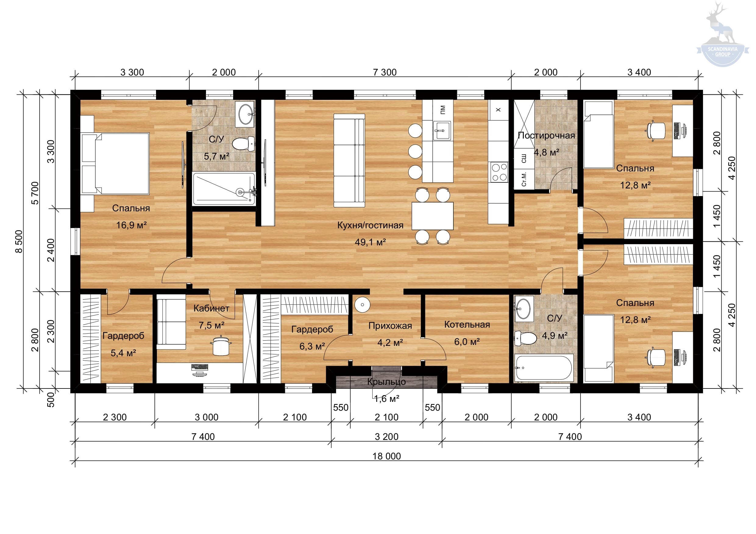
Одноэтажный дом по проекту КД-1210 имеет вытянутую форму, поэтому идеально подойдет для прямоугольного участка. Его размеры составляют 8,5*18 м. Общая площадь здания — 153 квадратных метра. Внутри с комфортом разместится семья из 3-5 человек. Здесь предусмотрено все, как для комфортного сезонного отдыха за городом, так и для постоянного проживания.
Лаконичный экстерьер коттеджа понравится любителям минимализма и современной архитектуры. Здание спроектировано из экологичных материалов, которые прекрасно держат тепло. За счет этого в помещении круглый год поддерживается комфортная температура, воздух хорошо циркулирует.
Одно из главных преимуществ дома – большое количество окон, в том числе, французских — от пола до потолка. А значит, жилье будет хорошо проветриваться и комнаты в течение дня будут наполнены приятным естественным светом.
Внутренняя планировка подразумевает наличие трех спален и небольшого кабинета, который также можно обустроить как жилое пространство на одну персону либо игровой уголок для детей. Кроме того, в доме есть две гардеробных, два санузла, помещение для стирки и сушки белья, а также просторнейшая кухня-гостиная площадью в почти 50 квадратных метров.
По Вашему желанию можно внести изменения в планировку этого коттеджа. Конечная стоимость готового жилья зависит от его комплектации и применяемых архитектурных решений. Ориентировочные цены указаны на сайте. Доступна ипотека и кредитование. Возможно использование материнского капитала.
Категория: Каркасный дом

«ЗАКРЫТЫЙ КОНТУР»
Дом собран в прочную “коробку”: фундамент, обвязка, каркас, окна/дверь, кровля, внешняя отделка и водосточная система. Дальше можно планировать следующие этапы — утепление, инженерию и внутренние работы под свои задачи и бюджет. Можно остановить строительство на любой срок.
- Перепланировка дома
- Полный проект дома
- Доставка до 50км
- Туалет и бытовка на объекте
- Видеонаблюдение за стройкой
- Выдерживает нагрузку до 10 тонн на м²
- Срок службы — более 100 лет
- Защита от влаги и гниения на весь срок эксплуатации дома
- Стропильная система 50×200мм
- Влажность древесины не более 18% — никаких усадок
- Входная дверь — металлическая утеплённая с надёжным замком
- Тепло остаётся внутри дома
- Гидро-ветрозащитная мембрана, обрешётка 45×45мм
- Утеплитель БЕЛТЕРМО 25мм, наличники, отливы
- Защита фасада и фундамента от воды
«ТЕПЛЫЙ КОНТУР»
Дом уже собран и утеплён. Добавлено напольное покрытие и утепление дома. Можно приступать к монтажу инженерных систем (электрика, сантехника, отопление), а затем переходить к предчистовой или чистовой отделке.
- Перепланировка дома
- Полный проект дома
- Доставка до 50км
- Туалет и бытовка на объекте
- Видеонаблюдение за стройкой
- Выдерживает нагрузку до 10 тонн на м²
- Срок службы — более 100 лет
- Защита от влаги и гниения на весь срок эксплуатации дома
- Стропильная система 50×200мм
- Влажность древесины не более 18% — никаких усадок
- Входная дверь — металлическая утеплённая с надёжным замком
- Тепло остаётся внутри дома
- Гидро-ветрозащитная мембрана, обрешётка 45×45мм
- Утеплитель БЕЛТЕРМО 25мм, наличники, отливы
- Защита фасада и фундамента от воды
- Шумоизоляция перегородок 100мм
- Пароизоляция и ветрозащита
- В доме тепло зимой и прохладно летом
- Идеально ровное основание под любой финишный пол
«ПРЕДЧИСТОВАЯ ОТДЕЛКА»
В доме выполнены все основные строительные работы, сделана предчистовая отделка. Готовы элементы террас и балконов. Дом готов к чистовой отделке, расстановке мебели, подключению коммуникаций и инженерных систем.
- Перепланировка дома
- Полный проект дома
- Доставка до 50км
- Туалет и бытовка на объекте
- Видеонаблюдение за стройкой
- Выдерживает нагрузку до 10 тонн на м²
- Срок службы — более 100 лет
- Защита от влаги и гниения на весь срок эксплуатации дома
- Стропильная система 50×200мм
- Влажность древесины не более 18% — никаких усадок
- Входная дверь — металлическая утеплённая с надёжным замком
- Тепло остаётся внутри дома
- Гидро-ветрозащитная мембрана, обрешётка 45×45мм
- Утеплитель БЕЛТЕРМО 25мм, наличники, отливы
- Защита фасада и фундамента от воды
- Шумоизоляция перегородок 100мм
- Пароизоляция и ветрозащита
- В доме тепло зимой и прохладно летом
- Идеально ровное основание под любой финишный пол
- Строительная лестница
- Осталось только выбрать цвет стен
- Террасная доска из сибирской лиственницы 28мм — не гниёт
- не скользит
- служит десятилетиями без ухода
- Безопасность и эстетика в одном решении
Специально для клиентов использующих ипотечные продукты нашей компании мы предлагаем комплектацию «White Box»
- Перепланировка дома
- Полный проект дома
- Доставка до 50км
- Геология участка
- Обеспечение туалетом и бытовкой на объекте
- Видеокамера для видеонаблюдения за процессом строительства
Фундамент
Железобетонная монолитная плита 250мм. Ливневая система. Малозаглубленный дренаж фундамента для дома. Подключение электроснабжения, ввод в дом. Подключение водоснабжения.
Обвязка
Гидроизоляция по фундаменту, устройство нижней обвязки из антисептированного бруса 100/150Х200. Опорные столбы, мауэрлаты, декоративные элементы 100/150/200 мм, строганные.
Каркас
Каркас дома из сухой строганой доски камерной сушки высшего сорта. Силовой каркас, хедеры, ригеля, обвязки каркаса - 50Х150, стропильная система, перекрытия - 50Х200, перегородки- 50Х100, 25Х100 мм.
Окна, двери
Окна и балконные двери белые металлопластиковые с двухкамерным стеклопакетом 4-18[Ar]-4-14[Ar]-4I-ст. Металлическая фурнитура TITAN AF Siegenia. Профиль Rehau Intelio, ламинация с внешней стороны. Входная дверь финская.
Кровельная система
Кровельное покрытие металлочерепица/кликфальц/ по проекту с комплектом фасонных изделий, гидро ветрозащитной мембраной TYVEK SOFT, обрешетка, контробрешетка 45/45 мм. Комплект Снегозадержателей Grand Line.
Внешняя отделка
Имитатор бруса «Карельский профиль», окрашенный в производственных условиях кликфальц/штукатурка по проекту + ветро теплоизоляционными плиты БЕЛТЕРМО TOP 25мм., шип-паз, устройство водоотливной металлической планки по периметру дома, оконные отливы, наличники окон и дверей. Гидроизоляция террас, балконов.
Напольное покрытие террас, балконов
Устройство полов террас и балконов выполняется из лиственницы 28 мм окрашенной в производственных условиях
Ограждения террас, балконов
Устройство ограждений террас и балконов по проекту
Утепление дома
Теплоизоляция потолков утеплителем Rockwool 250 мм, теплоизоляция стен утеплителем Rockwool 200 мм, шумоизоляция перегородок Rockwool 100/150мм. Пароизоляционные и ветро- влагозащитные мембраны монтируются внахлест
Напольное покрытие
Устройство полов ВДСПШ Quick Deck Proffessional 22мм по сухой строганной контр обрешетке
Внутренняя отделка
Внутренняя отделка стен гипсокартоном «Knauf». Заделка швов, грунтовка, шпатлевка 1 слой. Потолки натяжные. Лестница строительная при наличии 2 этажа.
Монтаж вентиляционной системы
Комплект водосточной системы «Docke Premium»
Монтаж электрики внутри дома
Котельная с теплыми полами и бойлером косвенного нагрева.
Блок управления автоматики, сервоприводы, GSM модуль.
Станция биологической очистки
Разводка труб систем ГВС ХВС и канализационных труб
Ваш каркасный дом?
- зададим несколько уточняющих вопросов;
- рассчитаем точную смету в течение 24 часов;
- дадим полное понимание по срокам, стоимости, гарантиям;

Мы работаем с соблюдением российских норм и стандартов строительства и используем финские технологии, поэтому наши дома служат нескольким поколениям.
Стоимость дома сопоставима с ценой небольшой 2-х комнатной квартиры в Санкт-Петербурге.
Все проекты можно посмотреть в каталоге проектов.









Полный ассортимент проектов с ценами.

менеджер по работе
с клиентами









