2-х этажный каркасный дом
с котельной, 157 м²
Проект: КД-530 | Размер: 9Х12,5 м | Цена: 8 222 500 руб.
Проект двухэтажного каркасного дома КД-530 — это коттедж в классическом шведском стиле. Общая площадь строения составляет 157 м². Необычная форма крыши с темной черепицей, панорамные окна на главном фасаде, симметричное расположение элементов экстерьера понравятся всем, кто стремится к гармоничной и элегантной архитектуре. Светлая внешняя отделка придаст зданию современный и свежий вид, а просторная терраса перед домом станет любимым местом для семейного времяпровождения в тёплое время года.
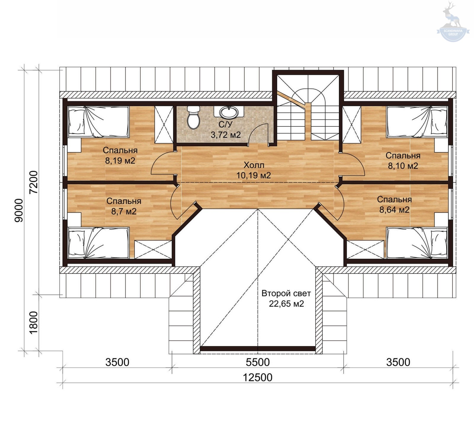
На первом этаже размещаются гостиная, кухня, сан/узел и котельная. Центральным помещением первого этажа является гостиная, которая всегда будет светлой за счет панорамного остекления и отсутствия над ней межэтажных перекрытий, так называемый – второй свет. По желанию будущего владельца, базовая открытая планировка кухни-гостиной может быть разделена перегородками на 3 функциональных пространства: зоны для приготовления пищи, приема гостей и столовой. Также на первом этаже есть 1 спальня, которая может быть использована как гостевая комната, кабинет или библиотека. На втором этаже расположено еще четыре спальни, холл и санузел.
Проект КД-530 — это практичное и удобное решение для постоянного загородного проживания для семей из 4-6 человек в составе. Классический стиль и функциональная планировка делают этот коттедж идеальным выбором для комфортной жизни вдали от шумного города.
Категория: Каркасный дом


Главный архитектор
"Сканди ЭкоДом"
«ЗАКРЫТЫЙ КОНТУР»
Дом собран в прочную “коробку”: фундамент, обвязка, каркас, окна/дверь, кровля, внешняя отделка и водосточная система. Дальше можно планировать следующие этапы — утепление, инженерию и внутренние работы под свои задачи и бюджет. Можно остановить строительство на любой срок.
- Перепланировка дома
- Полный проект дома
- Доставка до 50км
- Туалет и бытовка на объекте
- Видеонаблюдение за стройкой
- Выдерживает нагрузку до 10 тонн на м²
- Срок службы — более 100 лет
- Защита от влаги и гниения на весь срок эксплуатации дома
- Стропильная система 50×200мм
- Влажность древесины не более 18% — никаких усадок
- Входная дверь — металлическая утеплённая с надёжным замком
- Тепло остаётся внутри дома
- Гидро-ветрозащитная мембрана, обрешётка 45×45мм
- Утеплитель БЕЛТЕРМО 25мм, наличники, отливы
- Защита фасада и фундамента от воды
«ТЕПЛЫЙ КОНТУР»
Дом уже собран и утеплён. Добавлено напольное покрытие и утепление дома. Можно приступать к монтажу инженерных систем (электрика, сантехника, отопление), а затем переходить к предчистовой или чистовой отделке.
- Перепланировка дома
- Полный проект дома
- Доставка до 50км
- Туалет и бытовка на объекте
- Видеонаблюдение за стройкой
- Выдерживает нагрузку до 10 тонн на м²
- Срок службы — более 100 лет
- Защита от влаги и гниения на весь срок эксплуатации дома
- Стропильная система 50×200мм
- Влажность древесины не более 18% — никаких усадок
- Входная дверь — металлическая утеплённая с надёжным замком
- Тепло остаётся внутри дома
- Гидро-ветрозащитная мембрана, обрешётка 45×45мм
- Утеплитель БЕЛТЕРМО 25мм, наличники, отливы
- Защита фасада и фундамента от воды
- Шумоизоляция перегородок 100мм
- Пароизоляция и ветрозащита
- В доме тепло зимой и прохладно летом
- Идеально ровное основание под любой финишный пол
«ПРЕДЧИСТОВАЯ ОТДЕЛКА»
В доме выполнены все основные строительные работы, сделана предчистовая отделка. Готовы элементы террас и балконов. Дом готов к чистовой отделке, расстановке мебели, подключению коммуникаций и инженерных систем.
- Перепланировка дома
- Полный проект дома
- Доставка до 50км
- Туалет и бытовка на объекте
- Видеонаблюдение за стройкой
- Выдерживает нагрузку до 10 тонн на м²
- Срок службы — более 100 лет
- Защита от влаги и гниения на весь срок эксплуатации дома
- Стропильная система 50×200мм
- Влажность древесины не более 18% — никаких усадок
- Входная дверь — металлическая утеплённая с надёжным замком
- Тепло остаётся внутри дома
- Гидро-ветрозащитная мембрана, обрешётка 45×45мм
- Утеплитель БЕЛТЕРМО 25мм, наличники, отливы
- Защита фасада и фундамента от воды
- Шумоизоляция перегородок 100мм
- Пароизоляция и ветрозащита
- В доме тепло зимой и прохладно летом
- Идеально ровное основание под любой финишный пол
- Строительная лестница
- Осталось только выбрать цвет стен
- Террасная доска из сибирской лиственницы 28мм — не гниёт
- не скользит
- служит десятилетиями без ухода
- Безопасность и эстетика в одном решении
Специально для клиентов использующих ипотечные продукты нашей компании мы предлагаем комплектацию «White Box»
- Перепланировка дома
- Полный проект дома
- Доставка до 50км
- Геология участка
- Обеспечение туалетом и бытовкой на объекте
- Видеокамера для видеонаблюдения за процессом строительства
Фундамент
Железобетонная монолитная плита 250мм. Ливневая система. Малозаглубленный дренаж фундамента для дома. Подключение электроснабжения, ввод в дом. Подключение водоснабжения.
Обвязка
Гидроизоляция по фундаменту, устройство нижней обвязки из антисептированного бруса 100/150Х200. Опорные столбы, мауэрлаты, декоративные элементы 100/150/200 мм, строганные.
Каркас
Каркас дома из сухой строганой доски камерной сушки высшего сорта. Силовой каркас, хедеры, ригеля, обвязки каркаса - 50Х150, стропильная система, перекрытия - 50Х200, перегородки- 50Х100, 25Х100 мм.
Окна, двери
Окна и балконные двери белые металлопластиковые с двухкамерным стеклопакетом 4-18[Ar]-4-14[Ar]-4I-ст. Металлическая фурнитура TITAN AF Siegenia. Профиль Rehau Intelio, ламинация с внешней стороны. Входная дверь финская.
Кровельная система
Кровельное покрытие металлочерепица/кликфальц/ по проекту с комплектом фасонных изделий, гидро ветрозащитной мембраной TYVEK SOFT, обрешетка, контробрешетка 45/45 мм. Комплект Снегозадержателей Grand Line.
Внешняя отделка
Имитатор бруса «Карельский профиль», окрашенный в производственных условиях кликфальц/штукатурка по проекту + ветро теплоизоляционными плиты БЕЛТЕРМО TOP 25мм., шип-паз, устройство водоотливной металлической планки по периметру дома, оконные отливы, наличники окон и дверей. Гидроизоляция террас, балконов.
Напольное покрытие террас, балконов
Устройство полов террас и балконов выполняется из лиственницы 28 мм окрашенной в производственных условиях
Ограждения террас, балконов
Устройство ограждений террас и балконов по проекту
Утепление дома
Теплоизоляция потолков утеплителем Rockwool 250 мм, теплоизоляция стен утеплителем Rockwool 200 мм, шумоизоляция перегородок Rockwool 100/150мм. Пароизоляционные и ветро- влагозащитные мембраны монтируются внахлест
Напольное покрытие
Устройство полов ВДСПШ Quick Deck Proffessional 22мм по сухой строганной контр обрешетке
Внутренняя отделка
Внутренняя отделка стен гипсокартоном «Knauf». Заделка швов, грунтовка, шпатлевка 1 слой. Потолки натяжные. Лестница строительная при наличии 2 этажа.
Монтаж вентиляционной системы
Комплект водосточной системы «Docke Premium»
Монтаж электрики внутри дома
Котельная с теплыми полами и бойлером косвенного нагрева.
Блок управления автоматики, сервоприводы, GSM модуль.
Станция биологической очистки
Разводка труб систем ГВС ХВС и канализационных труб
Ваш каркасный дом?
- зададим несколько уточняющих вопросов;
- рассчитаем точную смету в течение 24 часов;
- дадим полное понимание по срокам, стоимости, гарантиям;

Мы работаем с соблюдением российских норм и стандартов строительства и используем финские технологии, поэтому наши дома служат нескольким поколениям.
Стоимость дома сопоставима с ценой небольшой 2-х комнатной квартиры в Санкт-Петербурге.
Все проекты можно посмотреть в каталоге проектов.









Полный ассортимент проектов с ценами.

менеджер по работе
с клиентами
Двухэтажный каркасный дом КД-530: баланс и гармония загородного жилья
Двухэтажный каркасный дом с котельной КД-530 от компании «Сканди ЭкоДом» — это лучшее решение для проживания как для молодых семей, так и для людей среднего возраста, желающих уйти от городской суеты и наслаждаться комфортным проживанием в собственном уютном коттедже. Мы являемся аккредитованным застройщиком и предлагаем каркасные дома в рассрочку, с возможностью использования ипотечных программ, при этом не увеличивая цену.
У нас имеется множество готовых проектов с расчетами и схемами, которые мы предоставляем бесплатно. Мы используем материалы и оборудование от проверенных поставщиков с мировой известностью, что гарантирует максимальный комфорт и безопасность проживания в коттедже.
При строительстве каркасных домов предлагается 3 варианта: каркас на фундаменте с внешней отделкой, дополнительное утепление, основные коммуникации и внешняя отделка, а также готовый дом «под ключ». Стоимость каркасного дома рассчитывается на основе выбранной комплектации, включая затраты на стройматериалы и количество работ.
Обращаясь в компанию «Сканди ЭкоДом», вы можете быть уверены в получении качественных услуг. У нас работает 15 бригад, которые ежегодно сдают более 50 объектов для жилья. Удобный каталог поможет вам выбрать подходящий проект из разнообразного ассортимента. Наши специалисты рассчитают стоимость услуг и предоставят вам прейскурант цен на материалы. Наши бригады работают в Санкт-Петербурге, Ленинградской, Московской и Новгородской областях.








