Двухэтажный каркасный дом с панорамными окнами и двумя террасами, 306 м²
Каркасный дом по проекту КД-630 является уникальным представителем стиля A-Frame и привлекает будущих владельцев необычным внешним видом. В Санкт-Петербурге такие коттеджи принято называть «дом-шалаш», что не лишено логики. Площадь строения составляет 306 м², что обеспечивает внушительное пространство для комфортного проживания семьи из 4-7 человек. Два этажа предлагают удобную и функциональную планировку из просторных и светлых помещений правильной формы.
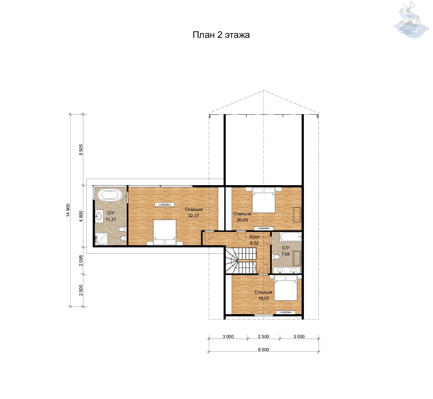
Первый этаж включает спальню, санузел, кабинет, просторную кухню-гостиную площадью 60 квадратных метров. Для хранения предметов быта и одежды предусмотрена кладовая и гардеробная. Парадная входная дверь отделена от жилых помещений холлом с межэтажной лестницей и тамбуром. Из гостиной можно пройти на одну из двух просторнейших террас. Второй этаж дома предлагает три спальни и два санузла (один из них находится в мастер спальне, второй — общий).
Ключевые особенности проекта: полностью застекленный фасад гостиной и панорамная стена мастер спальни, которые позволят владельцу наслаждаться прекрасными видами в любое время года. Множество стекла в фасаде обеспечит обильное солнечное освещение внутренних помещений. Однако, мы также гарантируем, что в доме всегда будет тепло и уютно благодаря применению теплоизоляционных материалов и стеклопакетов премиального качества.
«Сканди ЭкоДом» предлагает гибкость в настройке проекта под личные предпочтения и задачи будущего владельца. В случае необходимости, архитекторы компании внесут бесплатные изменения, чтобы дом отражал вашу уникальность и стал прекрасным местом для жизни.
Категория: Каркасный дом


Главный архитектор
"Сканди ЭкоДом"
«ЗАКРЫТЫЙ КОНТУР»
Дом собран в прочную “коробку”: фундамент, обвязка, каркас, окна/дверь, кровля, внешняя отделка и водосточная система. Дальше можно планировать следующие этапы — утепление, инженерию и внутренние работы под свои задачи и бюджет. Можно остановить строительство на любой срок.
- Перепланировка дома
- Полный проект дома
- Доставка до 50км
- Туалет и бытовка на объекте
- Видеонаблюдение за стройкой
- Выдерживает нагрузку до 10 тонн на м²
- Срок службы — более 100 лет
- Защита от влаги и гниения на весь срок эксплуатации дома
- Стропильная система 50×200мм
- Влажность древесины не более 18% — никаких усадок
- Входная дверь — металлическая утеплённая с надёжным замком
- Тепло остаётся внутри дома
- Гидро-ветрозащитная мембрана, обрешётка 45×45мм
- Утеплитель БЕЛТЕРМО 25мм, наличники, отливы
- Защита фасада и фундамента от воды
«ТЕПЛЫЙ КОНТУР»
Дом уже собран и утеплён. Добавлено напольное покрытие и утепление дома. Можно приступать к монтажу инженерных систем (электрика, сантехника, отопление), а затем переходить к предчистовой или чистовой отделке.
- Перепланировка дома
- Полный проект дома
- Доставка до 50км
- Туалет и бытовка на объекте
- Видеонаблюдение за стройкой
- Выдерживает нагрузку до 10 тонн на м²
- Срок службы — более 100 лет
- Защита от влаги и гниения на весь срок эксплуатации дома
- Стропильная система 50×200мм
- Влажность древесины не более 18% — никаких усадок
- Входная дверь — металлическая утеплённая с надёжным замком
- Тепло остаётся внутри дома
- Гидро-ветрозащитная мембрана, обрешётка 45×45мм
- Утеплитель БЕЛТЕРМО 25мм, наличники, отливы
- Защита фасада и фундамента от воды
- Шумоизоляция перегородок 100мм
- Пароизоляция и ветрозащита
- В доме тепло зимой и прохладно летом
- Идеально ровное основание под любой финишный пол
«ПРЕДЧИСТОВАЯ ОТДЕЛКА»
В доме выполнены все основные строительные работы, сделана предчистовая отделка. Готовы элементы террас и балконов. Дом готов к чистовой отделке, расстановке мебели, подключению коммуникаций и инженерных систем.
- Перепланировка дома
- Полный проект дома
- Доставка до 50км
- Туалет и бытовка на объекте
- Видеонаблюдение за стройкой
- Выдерживает нагрузку до 10 тонн на м²
- Срок службы — более 100 лет
- Защита от влаги и гниения на весь срок эксплуатации дома
- Стропильная система 50×200мм
- Влажность древесины не более 18% — никаких усадок
- Входная дверь — металлическая утеплённая с надёжным замком
- Тепло остаётся внутри дома
- Гидро-ветрозащитная мембрана, обрешётка 45×45мм
- Утеплитель БЕЛТЕРМО 25мм, наличники, отливы
- Защита фасада и фундамента от воды
- Шумоизоляция перегородок 100мм
- Пароизоляция и ветрозащита
- В доме тепло зимой и прохладно летом
- Идеально ровное основание под любой финишный пол
- Строительная лестница
- Осталось только выбрать цвет стен
- Террасная доска из сибирской лиственницы 28мм — не гниёт
- не скользит
- служит десятилетиями без ухода
- Безопасность и эстетика в одном решении
Специально для клиентов использующих ипотечные продукты нашей компании мы предлагаем комплектацию «White Box»
- Перепланировка дома
- Полный проект дома
- Доставка до 50км
- Геология участка
- Обеспечение туалетом и бытовкой на объекте
- Видеокамера для видеонаблюдения за процессом строительства
Фундамент
Железобетонная монолитная плита 250мм. Ливневая система. Малозаглубленный дренаж фундамента для дома. Подключение электроснабжения, ввод в дом. Подключение водоснабжения.
Обвязка
Гидроизоляция по фундаменту, устройство нижней обвязки из антисептированного бруса 100/150Х200. Опорные столбы, мауэрлаты, декоративные элементы 100/150/200 мм, строганные.
Каркас
Каркас дома из сухой строганой доски камерной сушки высшего сорта. Силовой каркас, хедеры, ригеля, обвязки каркаса - 50Х150, стропильная система, перекрытия - 50Х200, перегородки- 50Х100, 25Х100 мм.
Окна, двери
Окна и балконные двери белые металлопластиковые с двухкамерным стеклопакетом 4-18[Ar]-4-14[Ar]-4I-ст. Металлическая фурнитура TITAN AF Siegenia. Профиль Rehau Intelio, ламинация с внешней стороны. Входная дверь финская.
Кровельная система
Кровельное покрытие металлочерепица/кликфальц/ по проекту с комплектом фасонных изделий, гидро ветрозащитной мембраной TYVEK SOFT, обрешетка, контробрешетка 45/45 мм. Комплект Снегозадержателей Grand Line.
Внешняя отделка
Имитатор бруса «Карельский профиль», окрашенный в производственных условиях кликфальц/штукатурка по проекту + ветро теплоизоляционными плиты БЕЛТЕРМО TOP 25мм., шип-паз, устройство водоотливной металлической планки по периметру дома, оконные отливы, наличники окон и дверей. Гидроизоляция террас, балконов.
Напольное покрытие террас, балконов
Устройство полов террас и балконов выполняется из лиственницы 28 мм окрашенной в производственных условиях
Ограждения террас, балконов
Устройство ограждений террас и балконов по проекту
Утепление дома
Теплоизоляция потолков утеплителем Rockwool 250 мм, теплоизоляция стен утеплителем Rockwool 200 мм, шумоизоляция перегородок Rockwool 100/150мм. Пароизоляционные и ветро- влагозащитные мембраны монтируются внахлест
Напольное покрытие
Устройство полов ВДСПШ Quick Deck Proffessional 22мм по сухой строганной контр обрешетке
Внутренняя отделка
Внутренняя отделка стен гипсокартоном «Knauf». Заделка швов, грунтовка, шпатлевка 1 слой. Потолки натяжные. Лестница строительная при наличии 2 этажа.
Монтаж вентиляционной системы
Комплект водосточной системы «Docke Premium»
Монтаж электрики внутри дома
Котельная с теплыми полами и бойлером косвенного нагрева.
Блок управления автоматики, сервоприводы, GSM модуль.
Станция биологической очистки
Разводка труб систем ГВС ХВС и канализационных труб
Ваш каркасный дом?
- зададим несколько уточняющих вопросов;
- рассчитаем точную смету в течение 24 часов;
- дадим полное понимание по срокам, стоимости, гарантиям;







менеджер по работе
с клиентами
Двухэтажный каркасный дом-шалаш в стиле A-Frame: место гармонии и покоя
A-Frame (А-фрейм) – это архитектурный стиль, в котором треугольник является главным элементом. Часто форма строения в этом стиле вызывает ассоциацию с изящной буквой «А». Вместо ожидаемой ассоциации ограниченностью внутреннего пространства из-за скошенных стен, такой каркасный дом — шалаш (как их еще называют) становится великолепным произведением искусства, соединяющим в себе мастерство архитектуры и элегантный баланс между функциональностью и эстетикой.
Внутри дома каждая деталь продумана до мельчайших подробностей. Такой дом не только предлагает комфортное проживание, но и стимулирует креативность и вдохновляет своих обитателей. Освобожденное от лишних элементов внутреннее пространство способствует ясности мыслей и повышению продуктивности.
В результате, такой дом-шалаш становится истинным произведением искусства, где каждая линия, каждый материал и каждая деталь служат единой цели — созданию гармонии между человеком и окружающим миром. Он воплощает философию слияния архитектуры и природы, позволяя своим обитателям наслаждаться не только жизнью внутри его стен, но и самой красотой окружающей среды.
Одним из главных преимуществ «Сканди ЭкоДом» является возможность начать строительство с использованием ипотечного кредитования. Мы предлагаем широкий выбор готовых проектов каркасных домов для постоянного проживания, а также возможность заказать индивидуальный проект, полностью соответствующий вашим потребностям и предпочтениям.












