Двухэтажный каркасный дом с панорамными окнами и антресолью, 214 м²
( ! ) При необходимости архитектор бесплатно внесет любые
изменения в проект дома под Ваши вкусы и задачи.
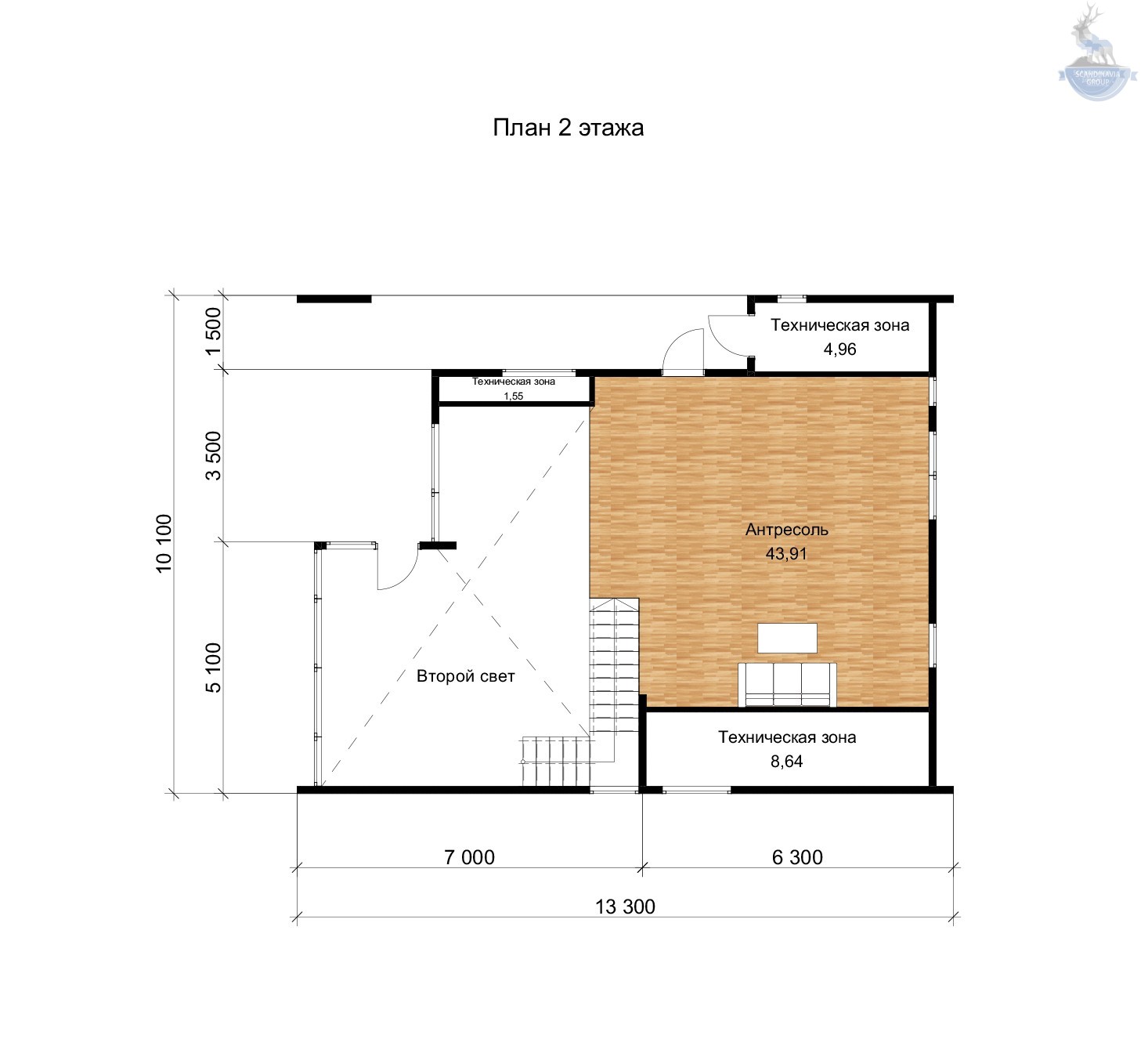
Вместительный, модный и стильный дом КД-850 в стиле Barn House заинтересует хозяев, предпочитающих передовые направления в архитектуре. Дом выглядит великолепно. Основной акцент во внутренней планировке поставлен на совмещенную кухню-столовую с гостиной, которая поразит вас своей функциональностью, дневным светом и большими витражными окнами. Архитектурный прием создает ощущение безграничного простора. Данное конструктивное решение обеспечивает просторное помещение достаточным количеством солнечного света для комфортной работы, творчества или отдыха. Также на первом этаже расположены две спальни, санузел, гардеробная, технические помещения, холл и огромная терраса, являющаяся частью самого дома, которая с одной стороны закрыта наружной стеной, что создает уютный угол для обустройства лаунж-зоны. На верхнем этаже планировкой предусмотрена просторная антресоль площадью 40м2
КД-850 в стиле Barn House подойдет современным хозяевам, этот дом будет радовать Вас своей просторной и красивой архитектурой, идущей в ногу с современными тенденциями на строительном рынке во всем мире.
Проектная документация дома включает в себя:
- ведомость чертежей, общие данные о проекте
- планировки этажей, чертежи вертикального, продольного и поперечного сечения дома
- схемы расположения элементов каркаса дома, лестниц, перекрытий, стропильной конструкции
- детальные чертежи отдельных узлов
- спецификации изделий и материалов
Категория: Барнхаус


Главный архитектор
"Сканди ЭкоДом"
«ЗАКРЫТЫЙ КОНТУР»
Дом собран в прочную “коробку”: фундамент, обвязка, каркас, окна/дверь, кровля, внешняя отделка и водосточная система. Дальше можно планировать следующие этапы — утепление, инженерию и внутренние работы под свои задачи и бюджет. Можно остановить строительство на любой срок.
- Перепланировка дома
- Полный проект дома
- Доставка до 50км
- Туалет и бытовка на объекте
- Видеонаблюдение за стройкой
- Выдерживает нагрузку до 10 тонн на м²
- Срок службы — более 100 лет
- Защита от влаги и гниения на весь срок эксплуатации дома
- Стропильная система 50×200мм
- Влажность древесины не более 18% — никаких усадок
- Входная дверь — металлическая утеплённая с надёжным замком
- Тепло остаётся внутри дома
- Гидро-ветрозащитная мембрана, обрешётка 45×45мм
- Утеплитель БЕЛТЕРМО 25мм, наличники, отливы
- Защита фасада и фундамента от воды
«ТЕПЛЫЙ КОНТУР»
Дом уже собран и утеплён. Добавлено напольное покрытие и утепление дома. Можно приступать к монтажу инженерных систем (электрика, сантехника, отопление), а затем переходить к предчистовой или чистовой отделке.
- Перепланировка дома
- Полный проект дома
- Доставка до 50км
- Туалет и бытовка на объекте
- Видеонаблюдение за стройкой
- Выдерживает нагрузку до 10 тонн на м²
- Срок службы — более 100 лет
- Защита от влаги и гниения на весь срок эксплуатации дома
- Стропильная система 50×200мм
- Влажность древесины не более 18% — никаких усадок
- Входная дверь — металлическая утеплённая с надёжным замком
- Тепло остаётся внутри дома
- Гидро-ветрозащитная мембрана, обрешётка 45×45мм
- Утеплитель БЕЛТЕРМО 25мм, наличники, отливы
- Защита фасада и фундамента от воды
- Шумоизоляция перегородок 100мм
- Пароизоляция и ветрозащита
- В доме тепло зимой и прохладно летом
- Идеально ровное основание под любой финишный пол
«ПРЕДЧИСТОВАЯ ОТДЕЛКА»
В доме выполнены все основные строительные работы, сделана предчистовая отделка. Готовы элементы террас и балконов. Дом готов к чистовой отделке, расстановке мебели, подключению коммуникаций и инженерных систем.
- Перепланировка дома
- Полный проект дома
- Доставка до 50км
- Туалет и бытовка на объекте
- Видеонаблюдение за стройкой
- Выдерживает нагрузку до 10 тонн на м²
- Срок службы — более 100 лет
- Защита от влаги и гниения на весь срок эксплуатации дома
- Стропильная система 50×200мм
- Влажность древесины не более 18% — никаких усадок
- Входная дверь — металлическая утеплённая с надёжным замком
- Тепло остаётся внутри дома
- Гидро-ветрозащитная мембрана, обрешётка 45×45мм
- Утеплитель БЕЛТЕРМО 25мм, наличники, отливы
- Защита фасада и фундамента от воды
- Шумоизоляция перегородок 100мм
- Пароизоляция и ветрозащита
- В доме тепло зимой и прохладно летом
- Идеально ровное основание под любой финишный пол
- Строительная лестница
- Осталось только выбрать цвет стен
- Террасная доска из сибирской лиственницы 28мм — не гниёт
- не скользит
- служит десятилетиями без ухода
- Безопасность и эстетика в одном решении
Специально для клиентов использующих ипотечные продукты нашей компании мы предлагаем комплектацию «White Box»
- Перепланировка дома
- Полный проект дома
- Доставка до 50км
- Геология участка
- Обеспечение туалетом и бытовкой на объекте
- Видеокамера для видеонаблюдения за процессом строительства
Фундамент
Железобетонная монолитная плита 250мм. Ливневая система. Малозаглубленный дренаж фундамента для дома. Подключение электроснабжения, ввод в дом. Подключение водоснабжения.
Обвязка
Гидроизоляция по фундаменту, устройство нижней обвязки из антисептированного бруса 100/150Х200. Опорные столбы, мауэрлаты, декоративные элементы 100/150/200 мм, строганные.
Каркас
Каркас дома из сухой строганой доски камерной сушки высшего сорта. Силовой каркас, хедеры, ригеля, обвязки каркаса - 50Х150, стропильная система, перекрытия - 50Х200, перегородки- 50Х100, 25Х100 мм.
Окна, двери
Окна и балконные двери белые металлопластиковые с двухкамерным стеклопакетом 4-18[Ar]-4-14[Ar]-4I-ст. Металлическая фурнитура TITAN AF Siegenia. Профиль Rehau Intelio, ламинация с внешней стороны. Входная дверь финская.
Кровельная система
Кровельное покрытие металлочерепица/кликфальц/ по проекту с комплектом фасонных изделий, гидро ветрозащитной мембраной TYVEK SOFT, обрешетка, контробрешетка 45/45 мм. Комплект Снегозадержателей Grand Line.
Внешняя отделка
Имитатор бруса «Карельский профиль», окрашенный в производственных условиях кликфальц/штукатурка по проекту + ветро теплоизоляционными плиты БЕЛТЕРМО TOP 25мм., шип-паз, устройство водоотливной металлической планки по периметру дома, оконные отливы, наличники окон и дверей. Гидроизоляция террас, балконов.
Напольное покрытие террас, балконов
Устройство полов террас и балконов выполняется из лиственницы 28 мм окрашенной в производственных условиях
Ограждения террас, балконов
Устройство ограждений террас и балконов по проекту
Утепление дома
Теплоизоляция потолков утеплителем Rockwool 250 мм, теплоизоляция стен утеплителем Rockwool 200 мм, шумоизоляция перегородок Rockwool 100/150мм. Пароизоляционные и ветро- влагозащитные мембраны монтируются внахлест
Напольное покрытие
Устройство полов ВДСПШ Quick Deck Proffessional 22мм по сухой строганной контр обрешетке
Внутренняя отделка
Внутренняя отделка стен гипсокартоном «Knauf». Заделка швов, грунтовка, шпатлевка 1 слой. Потолки натяжные. Лестница строительная при наличии 2 этажа.
Монтаж вентиляционной системы
Комплект водосточной системы «Docke Premium»
Монтаж электрики внутри дома
Котельная с теплыми полами и бойлером косвенного нагрева.
Блок управления автоматики, сервоприводы, GSM модуль.
Станция биологической очистки
Разводка труб систем ГВС ХВС и канализационных труб
Ваш каркасный дом?
- зададим несколько уточняющих вопросов;
- рассчитаем точную смету в течение 24 часов;
- дадим полное понимание по срокам, стоимости, гарантиям;







менеджер по работе
с клиентами










