Двухэтажный каркасный дом
с балконом и крыльцом, 188 м²
Проект: КД-460 | Размер: 7х14 м | Цена: 7 877 500 руб.
Двухэтажный каркасный дом в стиле Барнхаус по проекту КД-460 — идеальное решение для тех, кто ценит минималистичный стиль и практичность современной архитектуры. Лаконичная внешняя отделка, асимметричная форма строения, большие окна на главном фасаде, крытая терраса и балкон: КД-460 не только красив, но функционален. Площадь строения составляет 188 м², что позволяет предложить уютные и просторные помещения для семьи из 3-5 человек.
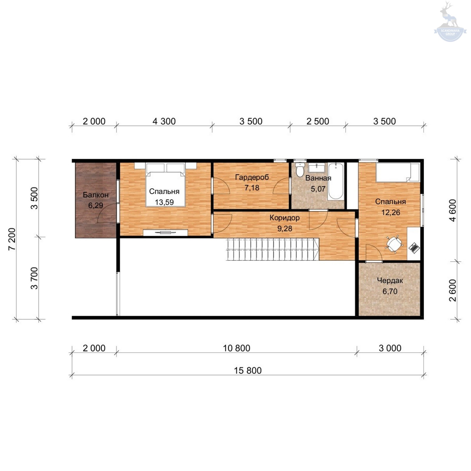
Внутренняя планировка коттеджа разделена на функциональные «дневные» и «ночные» зоны, что будет сопутствовать качественному отдыху и комфортному проживанию всех жильцов. Первый этаж предлагает кухню-гостиную площадью почти 39 квадратных метров, 2 санузла, сауну и спальную комнату, которая оснащена гардеробной. В дом ведет 4 входных двери, 3 из которых оборудованы крыльцом, а 4-й служит для выхода из гостиной на просторную террасу. Второй этаж предполагает наличие 2 спален, одна из которых имеет выход на небольшой балкон и гардеробную. Тут же есть санузел с ванной и вспомогательное помещение – чердак, которое владелец может использовать по своему усмотрению. Создайте там уютную библиотеку, кабинет или даже игровую зону для детей — вариантов множество!
Важным преимуществом барнхауса КД-460 является возможность для его индивидуализации. Вы сможете выбрать цвет фасада, материалы отделки, расположение окон и дверей — мы сделаем все, чтобы этот дом стал по-настоящему уникальным и отражал ваш индивидуальный стиль и вкус.
Категория: Барнхаус


Главный архитектор
"Сканди ЭкоДом"
«ЗАКРЫТЫЙ КОНТУР»
Дом собран в прочную “коробку”: фундамент, обвязка, каркас, окна/дверь, кровля, внешняя отделка и водосточная система. Дальше можно планировать следующие этапы — утепление, инженерию и внутренние работы под свои задачи и бюджет. Можно остановить строительство на любой срок.
- Перепланировка дома
- Полный проект дома
- Доставка до 50км
- Туалет и бытовка на объекте
- Видеонаблюдение за стройкой
- Выдерживает нагрузку до 10 тонн на м²
- Срок службы — более 100 лет
- Защита от влаги и гниения на весь срок эксплуатации дома
- Стропильная система 50×200мм
- Влажность древесины не более 18% — никаких усадок
- Входная дверь — металлическая утеплённая с надёжным замком
- Тепло остаётся внутри дома
- Гидро-ветрозащитная мембрана, обрешётка 45×45мм
- Утеплитель БЕЛТЕРМО 25мм, наличники, отливы
- Защита фасада и фундамента от воды
«ТЕПЛЫЙ КОНТУР»
Дом уже собран и утеплён. Добавлено напольное покрытие и утепление дома. Можно приступать к монтажу инженерных систем (электрика, сантехника, отопление), а затем переходить к предчистовой или чистовой отделке.
- Перепланировка дома
- Полный проект дома
- Доставка до 50км
- Туалет и бытовка на объекте
- Видеонаблюдение за стройкой
- Выдерживает нагрузку до 10 тонн на м²
- Срок службы — более 100 лет
- Защита от влаги и гниения на весь срок эксплуатации дома
- Стропильная система 50×200мм
- Влажность древесины не более 18% — никаких усадок
- Входная дверь — металлическая утеплённая с надёжным замком
- Тепло остаётся внутри дома
- Гидро-ветрозащитная мембрана, обрешётка 45×45мм
- Утеплитель БЕЛТЕРМО 25мм, наличники, отливы
- Защита фасада и фундамента от воды
- Шумоизоляция перегородок 100мм
- Пароизоляция и ветрозащита
- В доме тепло зимой и прохладно летом
- Идеально ровное основание под любой финишный пол
«ПРЕДЧИСТОВАЯ ОТДЕЛКА»
В доме выполнены все основные строительные работы, сделана предчистовая отделка. Готовы элементы террас и балконов. Дом готов к чистовой отделке, расстановке мебели, подключению коммуникаций и инженерных систем.
- Перепланировка дома
- Полный проект дома
- Доставка до 50км
- Туалет и бытовка на объекте
- Видеонаблюдение за стройкой
- Выдерживает нагрузку до 10 тонн на м²
- Срок службы — более 100 лет
- Защита от влаги и гниения на весь срок эксплуатации дома
- Стропильная система 50×200мм
- Влажность древесины не более 18% — никаких усадок
- Входная дверь — металлическая утеплённая с надёжным замком
- Тепло остаётся внутри дома
- Гидро-ветрозащитная мембрана, обрешётка 45×45мм
- Утеплитель БЕЛТЕРМО 25мм, наличники, отливы
- Защита фасада и фундамента от воды
- Шумоизоляция перегородок 100мм
- Пароизоляция и ветрозащита
- В доме тепло зимой и прохладно летом
- Идеально ровное основание под любой финишный пол
- Строительная лестница
- Осталось только выбрать цвет стен
- Террасная доска из сибирской лиственницы 28мм — не гниёт
- не скользит
- служит десятилетиями без ухода
- Безопасность и эстетика в одном решении
Специально для клиентов использующих ипотечные продукты нашей компании мы предлагаем комплектацию «White Box»
- Перепланировка дома
- Полный проект дома
- Доставка до 50км
- Геология участка
- Обеспечение туалетом и бытовкой на объекте
- Видеокамера для видеонаблюдения за процессом строительства
Фундамент
Железобетонная монолитная плита 250мм. Ливневая система. Малозаглубленный дренаж фундамента для дома. Подключение электроснабжения, ввод в дом. Подключение водоснабжения.
Обвязка
Гидроизоляция по фундаменту, устройство нижней обвязки из антисептированного бруса 100/150Х200. Опорные столбы, мауэрлаты, декоративные элементы 100/150/200 мм, строганные.
Каркас
Каркас дома из сухой строганой доски камерной сушки высшего сорта. Силовой каркас, хедеры, ригеля, обвязки каркаса - 50Х150, стропильная система, перекрытия - 50Х200, перегородки- 50Х100, 25Х100 мм.
Окна, двери
Окна и балконные двери белые металлопластиковые с двухкамерным стеклопакетом 4-18[Ar]-4-14[Ar]-4I-ст. Металлическая фурнитура TITAN AF Siegenia. Профиль Rehau Intelio, ламинация с внешней стороны. Входная дверь финская.
Кровельная система
Кровельное покрытие металлочерепица/кликфальц/ по проекту с комплектом фасонных изделий, гидро ветрозащитной мембраной TYVEK SOFT, обрешетка, контробрешетка 45/45 мм. Комплект Снегозадержателей Grand Line.
Внешняя отделка
Имитатор бруса «Карельский профиль», окрашенный в производственных условиях кликфальц/штукатурка по проекту + ветро теплоизоляционными плиты БЕЛТЕРМО TOP 25мм., шип-паз, устройство водоотливной металлической планки по периметру дома, оконные отливы, наличники окон и дверей. Гидроизоляция террас, балконов.
Напольное покрытие террас, балконов
Устройство полов террас и балконов выполняется из лиственницы 28 мм окрашенной в производственных условиях
Ограждения террас, балконов
Устройство ограждений террас и балконов по проекту
Утепление дома
Теплоизоляция потолков утеплителем Rockwool 250 мм, теплоизоляция стен утеплителем Rockwool 200 мм, шумоизоляция перегородок Rockwool 100/150мм. Пароизоляционные и ветро- влагозащитные мембраны монтируются внахлест
Напольное покрытие
Устройство полов ВДСПШ Quick Deck Proffessional 22мм по сухой строганной контр обрешетке
Внутренняя отделка
Внутренняя отделка стен гипсокартоном «Knauf». Заделка швов, грунтовка, шпатлевка 1 слой. Потолки натяжные. Лестница строительная при наличии 2 этажа.
Монтаж вентиляционной системы
Комплект водосточной системы «Docke Premium»
Монтаж электрики внутри дома
Котельная с теплыми полами и бойлером косвенного нагрева.
Блок управления автоматики, сервоприводы, GSM модуль.
Станция биологической очистки
Разводка труб систем ГВС ХВС и канализационных труб
Ваш каркасный дом?
- зададим несколько уточняющих вопросов;
- рассчитаем точную смету в течение 24 часов;
- дадим полное понимание по срокам, стоимости, гарантиям;

Мы работаем с соблюдением российских норм и стандартов строительства и используем финские технологии, поэтому наши дома служат нескольким поколениям.
Стоимость дома сопоставима с ценой небольшой 2-х комнатной квартиры в Санкт-Петербурге.
Все проекты можно посмотреть в каталоге проектов.






Полный ассортимент проектов с ценами.

менеджер по работе
с клиентами
Каркасный дом барнхаус — идеальное решение для постоянного проживания семьи в любое время года
Компания «Сканди ЭкоДом» с 2010 года занимается строительством барнхаусов под ключ, предлагая различные варианты отделки с использованием скандинавских технологий. Мы работаем не только в Санкт-Петербурге, но и в Ленинградской, Московской и Новгородской областях.
Стоимость строительства барнхауса зависит от различных параметров, таких как сложность конструкции (этажность, наличие панорамных окон, террасы, балкона и других элементов), тип фундамента (ленточный, свайный, монолитный или из железобетонных свай), вид отделки (предчистовая, закрытый контур с утеплением, «дом под ключ»), материал облицовки фасада (виниловый или фиброцементный сайдинг, имитация бруса, панели и другие), а также проведение коммуникаций (электрическая разводка, канализация, отопление и водоснабжение) и внутренней отделки (монтаж лестниц, дверей, укладка пола, обои или обшивка деревом).
Строительство барнхауса под ключ позволяет сэкономить время и деньги на поиске строителей и решении всех вопросов, связанных со строительством и отделкой. Вы получаете готовое жилье, в которое можно заселяться сразу после подписания акта приемки. Наша компания также предлагает две дополнительные опции: каркас без утепления с внешней отделкой и здание с коммуникациями, но без внутренней отделки. Выбирайте то, что подходит именно вам.
Три причины обратиться к нам: строительство барнхауса под ключ от «Сканди ЭкоДом» — это выгодное решение для приобретения стильного, комфортного, недорогого и долговечного жилья с гарантией качества до 20 лет. Мы строим по индивидуальным проектам или предлагаем выбрать один из ста готовых. Наш штат из 15 строительных бригад гарантирует завершение работ в срок, оговоренный в договоре.









